Location:Singapore

Program: District Cooling System (DCS)

Realization: 2014/2015

Building area: 11000sqm

In charge of: From preliminary design to detailed drawings phase

 

One-north is a 200-ha development incorporating work, live and learn elements. It was conceptualized by Zaha Hadid Architects. 

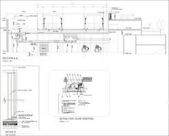
Our project consists of 2 underground storeys to accumulate TES tank and Plants rooms for cooling tower occupying a subterranean space of 10m below road level. The aim of this proposal is to provide a comprehensive and sustainable aesthetic resolution and acoustic attenuation of the cooling towers, yet retain the function of this site as a public park within the linear green corridor envisioned by the overall master plan. There is a great sense of continuity in the landscape, from the office building nearby to the Water Cooling Plant. To reduce the soil amount to be used for the sloping landscape we are creating a second concrete slab above the Water Cooling Plant roof. The concrete structure is complemented with 1 m soil landscape. To create an organic form that blends in landscape we designed a vertical green wall surrounding the Water Cooling Tower.

 

 

 

AG-INGO - Singapore

MELIE VAN REETH *Architecture Eco-conçue // Maîtrise d'Oeuvre // Audit Energétique